トイレ・浴室のリノベで快適さと開放感が劇的アップ!間取り・費用付き4事例
目次
監修・ライター
お風呂が大好きな日本人。温泉もいいけれど、毎日使う自宅のお風呂も快適な空間にしたいですよね。今回は、株式会社アポロ計画&リノベエステイト代表で一級建築士の松山真介さんに、リノベーションで快適になったバスルームの3つの事例を間取りから総工費まで含めて紹介してもらいます。
▼関連記事
《費用・間取り付き》リノベで実現!機能的&おしゃれな水回り3事例
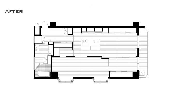
【事例1:総工費約1700万円】洗面脱衣室とトイレ、バスルームを一体にして広々とした空間を実現
最初の事例は、95㎡3LDKのマンションを1LDKにリノベーションしたケース。夫婦2人暮らしのご家族です。
《リノベ前後の間取り図》



リノベーション前はこんな感じだった洗面室が、リノベーションでどう変わったのでしょうか。


大人の2人暮らしということもあり、トイレと洗面脱衣室とバスルームを一体化した空間にリノベーション。2人暮らしや1人暮らしなら、このような間取りも可能です。トイレ+洗面所+バスルームの面積はリノベーション前と比べてほとんど変わりませんが、バスルームの面積を広くとることができました。洗い場も浴槽も広くなり、ゆったりと使えます。バスルームと洗面室の仕切りをガラス張りにすることで視覚的にも広がりを感じますね。
松山さんによると、バスルームは工事の仕方によって、ユニットバスと在来工法に大きく分けられるそうです。ユニットバスは現代の日本の住宅で広く普及しているタイプで、工場であらかじめつくった部品を現場で組み立てる方式。工期が短くなくなるので、その分工賃が安くなるというメリットがあります。一方の在来工法は、タイルや蛇口、シャワーヘッド、バスタブなど全てセレクトしてゼロからつくるのでデザインの自由度が高いというメリットがあります。こちらのお宅は、在来工法でホテルのような雰囲気が漂うバスルームをつくりました。
こちらは別のお宅。1人でお住まいです。

同様にトイレと洗面脱衣室とバスルームを一体化し、限られた空間でも広々と使えるように工夫しています。

洗面台の横にあるのはタオルウォーマーです。タオルがいつもカラリと乾いていて気持ちよく使うことできるだけでなく、部屋を暖めることができますし場所もとりません。
サイズやデザインによって異なりますが、工事費込みで約10万円から設置可能だそうで、取り付けを希望する人が増えてきているそうですよ。
【事例2:総工費約1000万円】在来工法とユニットバスのいいとこどり。デザイン性と利便性を両立
次の事例は、67㎡2LDKのマンションを1LDK+トランクルーム+ウォークインクローゼットにリノベーションしたケース。夫婦2人のご家族です。
《リノベ前後の間取り図》
BEFORE

AFTER

リノベーションの結果、リビングルームとバスルームがサッシ窓でつながっている個性的なお宅に変身しました。

バスルームからリビングルームを見た写真です。バスルームがリビングルームの一部のようですね。
こちらのバスルームは、ハーフユニットという工事方法をとりました。どういう工法かというと、腰から下がユニットバスで上が在来工法を用いるのだそうです。日ごろのお手入れを考えるとユニットバスがやはり便利、でもデザイン性も高めたいということで、このような形にしたとのこと。在来工法にしたことで壁面に気に入ったタイルを貼ったり、船舶用の丸窓や大きな窓を取り付けたりできました。
「もちろん、最近はユニットバスもデザインのバリエーションが増えていて、機能も進化しています。調光ができたり、水に強いスピーカーを組み込むことで上質な音を楽しめたり、メーカーそれぞれ特色がありますよ」(松山さん)
【事例3:総工費約1200万円】バスタブは好みで置き型に。内窓で視線を遮りながら明るさと開放感を演出
最後の事例は、86㎡4LDKのマンションを2LDKにリノベーションしたケース。夫婦2人暮らしのご家族です。
《リノベ前後の間取り図》


リノベーション前は部屋の中ほどにあったバスルームを窓際に移動させました。

明るくて気持ちのいいバスルームですね。窓に対して斜めにもう一つ内窓を設置することで、開放感がありながら外からの視線も遮ることができます。
バスタブは床の上に置くタイプ。「デザイン的に置き型のバスタブが好みという方もいらっしゃいます。置くだけなので、埋め込みタイプより工事費も安くなりますよ」(松山さん)
最後に松山さんからお風呂のリノベーションについて大切なアドバイスをいただきました。
「お風呂は毎日使うものなので、工事費などの初期費用だけでなくランニングコストも重要です。バスタブの容量はカタログに書いてありますので、必ず確認しましょう。節水タイプのシャワーヘッドや保温性のあるバスタブを設置するのもランニングコストを削減するのに有効ですよ」
皆さんもお得で快適なバスルームの参考にしてみてくださいね。
※【画像・間取り図出典元】いずれも「リノベエステイト」
▼関連記事
《費用・間取り付き》リノベで実現!機能的&おしゃれな水回り3事例
《費用・間取り付き》洗面台をリビングに?水回りのリノベ3事例

