「男の隠れ家」が実現!玄関見直しで機能UPしたリノベ3事例
監修・ライター
玄関は内と外を区切る場所であり、家の第一印象を左右するともいえる場所。
こだわりたいけれど、都市部のマンションなどでは十分な広さが取れないといった悩みもありますよね。
今回はリノベエステイト代表・一級建築士の松山真介さんが手掛けたリノベーションから、限られた居住空間を最大限に生かせるエントランス周りの事例をご紹介します。
【事例1】限られた面積で実現。エントランス横に男の隠れ家空間を
最初の事例は、夫婦+子ども1人のご家族。4LDKのマンションを1LDKにリノベーションしました。
《リノベ前後の間取り図》

間取りの変更はご覧の通り。基本はほぼ変えていませんが、ホール部分をなくすなどして、より広く使えるスッキリとした間取りを実現しました。

こちらがリノベーション前。LDKからエントランスを見た写真です。

こちらがリノベーション後です。仕切りを取り払い、エントランスからLDKまで開放的な空間になりました。
エントランス横には、小部屋(DEN)を設けました。エントランスから直接靴のままでも入れます。

DENは、もとは巣穴や洞穴という意味。住宅では、書斎や趣味のための小部屋をDENと呼ぶそうです。家族が集うLDKから離れたエントランス横につくることで、「男の隠れ家」のような空間が実現しました。
窓の向こうは共用廊下で、反対の板壁側は寝室に接しています。マンションの場合、共用廊下に面する部屋は廊下を通る人の足音や気配が気になったり、冬は窓からの冷気が冷たく感じたりすることも。それが、このDENがあることで、外の気配や冷気が寝室に伝わるのを和らげることができるのです。
【事例2】エントランスに収納スペースを兼ねた「通り土間」を設置。使い勝手が向上
次は夫婦2人暮らしのケース。3LDKのマンションを1LDKにリノベーションしました。
《リノベ前後の間取り図》
BEFORE

AFTER

リノベーション前は、エントランスから廊下が続き、各部屋にアクセスするという間取りでした。それを、エントランスとLDKを直結する間取りに変更。リビングから各所にアクセスできる「リビングアクセス」のかたちをとりました。

写真左側が玄関ドアです。入ってすぐ、キッチンにつながっています。
松山さんによると、このリビングアクセスには、次のようなメリットがあるそうです。
・廊下やホールなどに使われていた場所を居住空間として活用できる
・各部屋にいく時にリビングを必ず通るため、家族のコミュニケーションが増す
このお宅の場合、リノベーション前の廊下面積は約6㎡(約4畳)。ただ移動するためだけの場所に、これだけ費やしていたんですね。これをリノベーションで有効に活用できるようになりました。
さらに、エントランスに横には靴のままで行けるストレージを設けました。

ストレージから玄関方向を見た写真です。
窓の外は共用廊下です。その反対側、靴箱の向こう側にはキッチンがあります。窓があるので、暗くなりがちなマンションの玄関も明るくなりました。また、この場所が共用廊下とLDKの間にワンクッションを入れる役割を果たしています。

そして、ストレージを通り抜けると、写真右側の土間に続きます。土間は、キッチンとベランダにつながっています。買い物した食材をそのままキッチンに持っていったり、ベランダに出たり。靴のまま行き来できて、とっても便利なんだそうです。
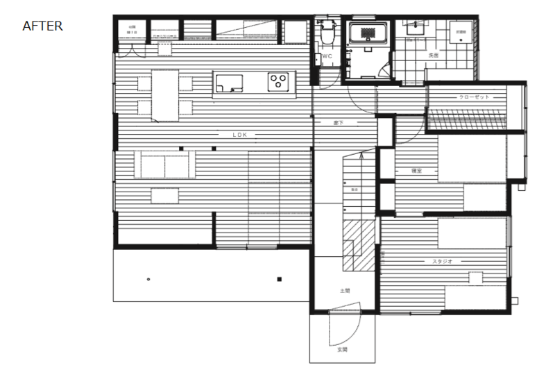
【事例3】多目的に使える土間のあるエントランス
最後は戸建てのお宅です。
《リノベ前後の間取り図》


こちらも、リノベーション前は廊下から各部屋にアクセスする間取り。廊下の面積は約13㎡(約8畳)もありました。そのうち約10㎡(約6畳)分をエントランスと一体化した土間に変更しました。

土間にしたことで、ただ靴を脱ぐだけの場所から多目的に使えるスペースに変身しました。施主は自転車やバーベキューなど、アウトドアのアクティビティが趣味とのこと。そうした趣味の道具のメンテナンス場所にも使えますよね。

こちらがリビングからエントランスを見た写真。冷暖房の効率を考えて、リビングとエントランスの間にはガラスの間仕切りをいれましたが、視覚的にはつながっています。開放的な空間になりました。
2番目、3番目の事例では、全体の面積は変わらないのに、それぞれ約6㎡、10㎡分居住空間が増えました。「例えば80㎡で3000万円の物件だとしたら、それぞれ225万円、375万円分お得という考え方もできるかもしれませんね」と松山さん。
玄関で靴を脱ぎ、廊下を通ってリビングルームや個室へ、という一般的な住宅の動線を見直すことで、玄関周りの空間を充実させながら、居住空間もより広くすることができるんですね。
※【画像・間取り図出典元】いずれも「リノベエステイト」

