中古マンションをリノベしたお洒落な大人の趣味部屋3つ【間取り付き】
目次
監修・ライター
「趣味の部屋」。なんだか贅沢な響きですよね。いつかは欲しい、あったらいいなとは思うけど、日本の住宅事情ではなかなか難しい面もあります。
今回は、リノベエステイト代表・一級建築士の松山さんが手掛けたリノベーションから、限られた住宅面積でも実現できた趣味に没頭できる部屋をご紹介します。
▼関連記事
築30年以上の団地をリノベーション、趣味を楽しむ大人の2人暮らし空間に大改装!
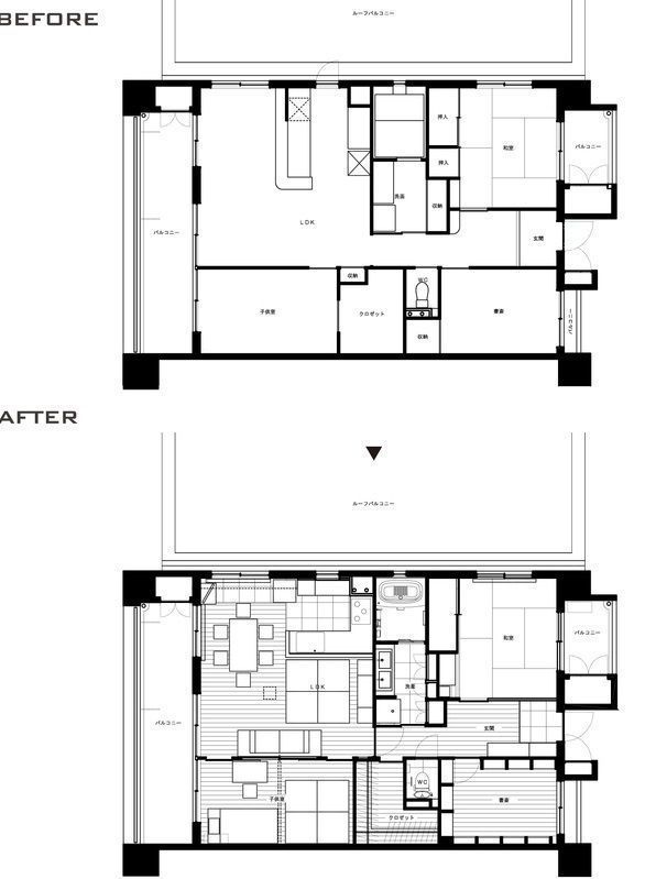
【1】防音性を高めた寝室の一角をスタジオに。明るいLDKでホームパーティーも(総工費1700万円)
最初は、ご夫婦2人のケース。約100㎡ 3LDKのマンションを、1LDKに。大人の2人暮らしに似合う家にリノベーションしました。
《リノベ前後の間取り図》

施主は飲食店を経営する傍ら、演奏活動も行っているそうです。家でも音楽を楽しむために、スタジオ的な空間が欲しいというご希望がありました。
しかし、マンションで完璧な防音室を作るのは難しく、かなりコストもかかります。そこで、防音性能を高めた広い寝室を作り、その一角をスタジオ風にすることにしました。

リノベーション後の寝室兼スタジオです。広さは30㎡(約20畳)もあります。ベッドの奥がスタジオスペースです。
壁と床下、天井裏に防音シートを入れました。これだけでも防音性能がかなり上がるそうです。考えてみれば、寝室も防音性能がいいのに越したことはないですよね。

LDKから見た寝室兼スタジオです。窓を作って、スタジオのような見え方になるようにしました。
一方、リノベーション前のLDKはというと・・・

こんな感じ。手前がリビング、左奥に見えるのがキッチンです。

奥まったところにあるため、昼間でも暗いキッチンでした。

こちらが、リノベーション後のLDKです。明るくオープンなキッチンになりました。友人を招いてホームパーティーもできるよう計画したそうです。
さらに、こちらのお宅は交通量の多い都心部にあることから、外に面するサッシの内側にもう一つインナーサッシをつけて、窓を二重にしました。そのため外から入ってくる音も軽減され、より静かな環境で音楽を楽しめる空間になりました。防音だけでなく断熱性能もアップするそうですよ。
「築年数の経った物件は、断熱性能が低いケースが多いんですね。リノベーション時には、このインナーサッシをつけることをおすすめしています」(松山さん)
インナーサッシの取り付けは、1ヵ所10万円程度だそうです。
【2】マンション1階の立地を生かした土間空間で多彩な楽しみ方を実現!(総工費900万円)
次の事例は、4LDKのマンションを2LDKにリノベーションしたケース。洋室だったところを玄関から靴のまま入れる土間にして、趣味を楽しめる多目的な空間にしました。
《リノベ前後の間取り図》



リノベーション前の洋室とリビングルームです。これがリノベーションでガラリと変わりました。

リノベーション後。この開放感、すごいですよね。とてもマンションとは思えません。
写真右手に玄関があり、そこから靴のまま写真手前の土間に行くことができます。自転車も入れられるので、ここでメンテナンスをすることもできますね。土間ですから、フィットネスのマシンなど重いものを置くこともできます。

リビングと土間の間にカーテンをつけ、散らかっているときなどは目隠しできるようになっています。
広さは約10㎡(6畳)。福岡市郊外なら約200~300万円程度で、このような趣味の空間を持つことができます。
「あえて目的を限定しない部屋を作るのも、生活を豊かにする一つの方法です」と、松山さん。「こちらのお宅には小さなお子さんがいますので、将来子ども部屋が必要になったら、ドアと壁をつけて子ども部屋にする予定にしています。また何年かして子ども部屋が不要になったら、また多目的な空間に戻せばいいのです」
実は、マンションだと階下に靴音が響くので、靴のまま入れる土間を計画するのは難しいそうです。こちらのお宅はマンションの1階にあることから、このような大胆な間取りにすることができました。
「一般的に、1階は防犯やプライバシーの面から避けられがちです。しかし、一見マイナスと思われる条件をプラスに変えられる方程式をどれだけ持っているか。これがリノベーションでは大事なんです」(松山さん)
【3】本好きの夢を実現!!作り付け本棚に囲まれた書斎でゆったり(総工費1300万円)
最後は、3LDKのマンションをリノベーションしたケースです。
《リノベ前後の間取り図》

全体的な間取りは大きく変わっていませんが、一室を書庫兼書斎にしました。

壁3面が床から天井までの本棚になっています。約10㎡(約6畳)の書斎は広すぎず、心地いいサイズ感です。本が好きな人にとっては夢のような空間ですよね。
作り付けの本棚の価格は約50~100万円ほど。既製品を使うより1.5~2倍の価格になるそうですが、天井から床まで空間を無駄なく使えますし、地震のときに棚が倒れてくることもありません。本は重量物のため、床を補強し、壁も構造用の丈夫なものを使っているそうです。
松山さん的趣味の部屋ベスト3でした。いろんな用途に使えるニュートラルな空間だったり、個人の趣味に特化した部屋だったり、ひと口に「趣味の部屋」といっても、いろんな形がありますね。こうした空間が家にあることが、生活に彩りを与えてくれるのではないでしょうか。
▼関連記事
築30年以上の団地が、趣味を楽しむ大人の2人暮らし空間に大改造!
※【画像・間取り図出典元】いずれも「リノベエステイト」

